Продам квартиру новобудова Польський бульвар 93 600 $ (№ 213-266-532)
Ціна: 93 600 $

Адреса: Житомир, Житомирська, Богунія
Характеристики
| Ціна: | 93 600 $ |
|---|---|
| № об'єкта: | 213-266-532 |
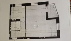
| Кімнат: | 2 |
| Поверх: | 8 / 9 |
| Площа: | 65 / - / 10 м2 |
| Санвузол: | 1 |
| Додатково: | новобудова |
Опис
Продам квартиру в новобудові. 65 м.кв., 8 поверх, Польський бульвар.(Малікова)












