Продаж однокімнатна квартира в ЖК Гранд Сіті Домбровський 50 000 $ (№ 213-202-033)

Ціна: 50 000 $
Характеристики
Ціна: | 50 000 $ |
---|---|
№ об'єкта: | 213-202-033 |
Кімнат: | 1 |
Поверх: | 12 / 14 |
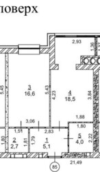
Площа: | 47 / - / 18 м2 |
Санвузол: | 1 |
Додатково: | новобудова |
Адреса: Житомирська, Житомир, Центр
Гарна однокімнатна квартира, в побудованній 8 секції , 12 поверх з виглядом на вулицю Перемоги, 47 м2.