Продається однокімнатна квартира в ЖК «СІМЕЙНИЙ» (№ 213-120-826)

Ціна: 81 999 $
Характеристики
Ціна: | 81 999 $ |
---|---|
№ об'єкта: | 213-120-826 |
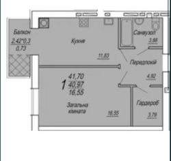
Кімнат: | 1, студія |
Поверх: | 11 / 11 |
Площа: | 47 / - / 11 м2 |
Санвузол: | 1 сумісний |
Додатково: | новобудова |
Адреса: Житомирська, Житомир, Центр
Продається однокімнатна квартира в ЖК «СІМЕЙНИЙ»
Квартира знаходиться на 11 поверсі , в підʼїзді 2 ліфти , 85%заселено .
Загальна квартира має 47 кВ м .
Виконано сучасний дизайнерський ремонт з якісних чорнових та чистих матеріалів.
При продажі все залишається.