Продається 1-кімнатна квартира в зданій секції ЖК 'Домашній 2' (№ 213-118-201)

Ціна: 42 500 $
Характеристики
Ціна: | 42 500 $ |
---|---|
№ об'єкта: | 213-118-201 |
Кімнат: | 1 |
Поверх: | 9 / 10 |
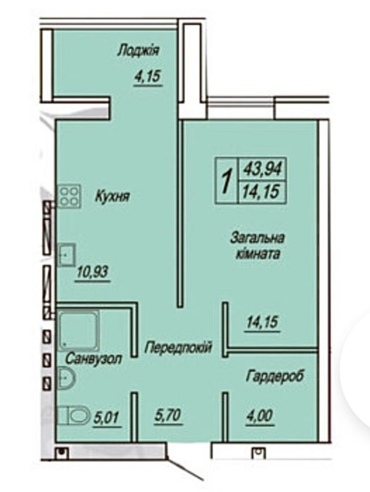
Площа: | 45 / - / 15 м2 |
Санвузол: | 1 сумісний |
Балкон: | лоджія |
Адреса: Житомирська, Житомир, Крошня
Продається 1-кімнатна квартира в зданій секції ЖК 'Домашній 2'
Загальна площа — 45м². Поверх 9 із 10.
Світла та затишна квартира з продуманим плануванням: кімната з нішею, гардеробна, суміжний санвузол.
Встановлено двоконтурний газовий котел — автономне газове опалення, що забезпечує комфорт і економію в зимовий період. Квартира розташована в середині будинку — дуже тепла.
Будинок введено в експлуатацію, всі комунікації підключені. Два ліфти працюють.
Є можливість перепланування в сучасну євродвушку (окрема спальня + кухня-вітальня) — перепланування можемо взяти на себе.
Переуступка, можливе придбання через програму 'єОселя' або інші державні програми.
Документи готові до угоди. Ремонт можна розпочинати одразу.
Розвинена інфраструктура — поруч безліч магазинів, кафе, аптек, салонів краси, фітнес-центрів і дитячих майданчиків. Усе необхідне для комфортного життя