Продаж квартири у новобудові ЖК 'Олімпійський' (№ 213-075-490)

Ціна: 60 000 $
Характеристики
| Ціна: | 60 000 $ |
|---|---|
| № об'єкта: | 213-075-490 |
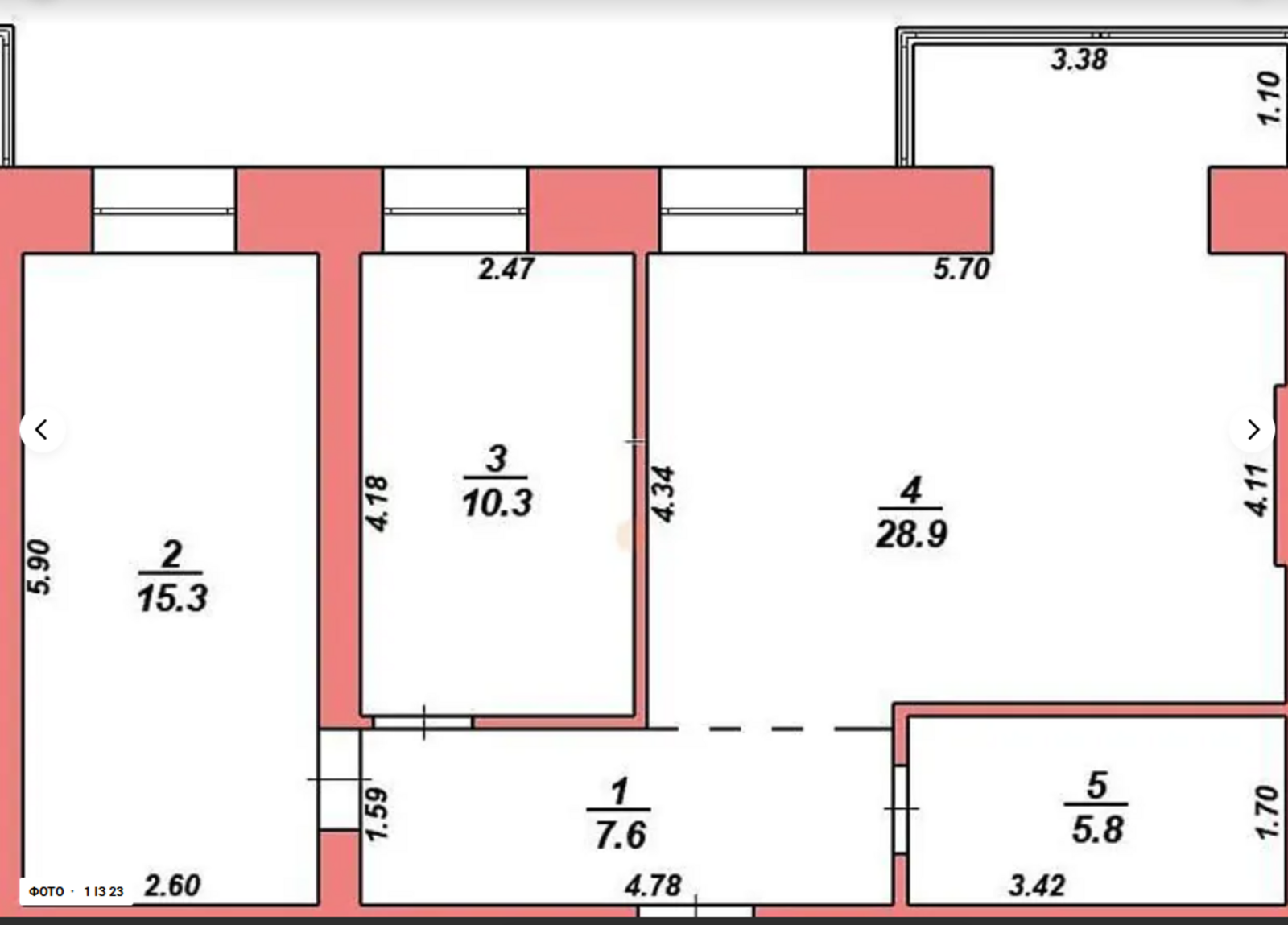
| Кімнат: | 2 |
| Поверх: | 8 / 9 |
| Площа: | 68 / 35 / 26 м2 |
| Санвузол: | 1 |
| Додатково: | новобудова |
Адреса: Житомирська, Житомир, Крошня
До продажу 2-х кімнатна квартира з кухнею студією в ЖК Олімпійський.
Опалення індивідуальне (двоконтурний котел), якісні броньовані двері, панорамні вікна.






