Продаж квартири ЖК: Smart City (№ 212-991-734)

Ціна: 83 000 $
Характеристики
Ціна: | 83 000 $ |
---|---|
№ об'єкта: | 212-991-734 |
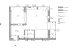
Кімнат: | 2 |
Поверх: | 8 / 13 |
Площа: | 67 / - / 35 м2 |
Санвузол: | 1 |
Додатково: | новобудова |
Адреса: Житомирська, Житомир, Центр
Продам квартиру у житловому комплексі бізнес класу «Смарт Сіті». Площею 67м2.
Квартира облаштована якісною віконною групою, вхідними дверями, корзиною під кондиціонер та сучасною вентиляційною системою.
Проведена пожежна безпека до кожної квартири.
Сам жк має сучасний вигляд, якісний ремонт, зручне розташування, конс‘єрж сервіс, два ліфти. Також,планується паркувальна зона, закрита територія.
В квартирі повністю перероблена штукатурка від забудовника, зроблені малярні роботи під покраску (декоративну штукатурку), залита стяжка.
Встановлений новий преміальний котел, бойлер.
Повністю зроблена чорнова електрика, водяна тепла підлога (по всій квартирі), сантехніка та преміальний комплект інсталяції geberit з унітазом та кнопкою . Проведений вихід під кондиціонер.
Є фото поетапно виконаних робіт.
Система охорони Ajax та дизайн проєкт у подарунок.
Розгляну продаж як у валюті (долар, євро), так і під програму «єОселя»